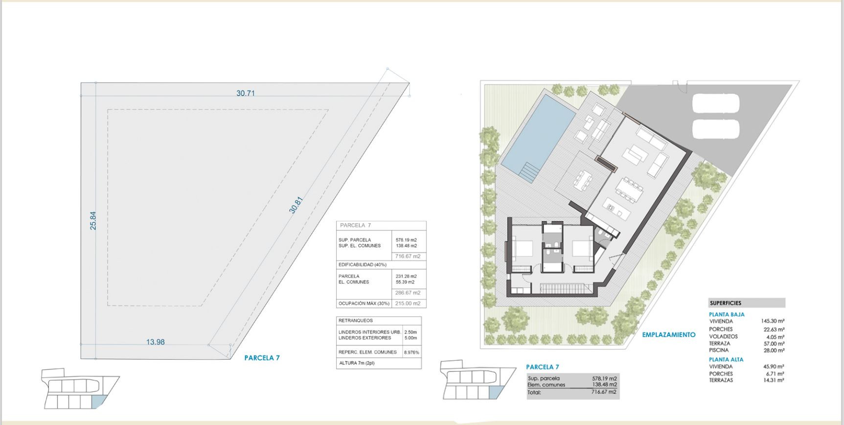
PARCELA 7. Współczesny projekt willi znajduje się w ekskluzywnym prywatnym budynku mieszkalnym między plażą Las Rotas i spódnicami Montgó, w Dénia (Alicante), kilka minut od portu sportowego i wszystkie główne usługi.
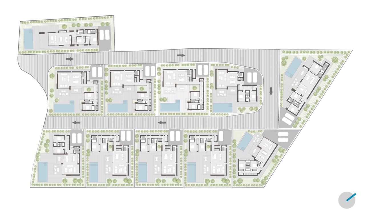
Ten kompleks mieszkalny składa się z 7 różnych modeli obudowy, wszystkie zaprojektowane w ramach tej samej koncepcji architektonicznej linii awangardowych i materiałów, które harmonijnie integrują się ze środowiskiem.
Wioska jest podzielona na dwie rośliny:
Główny zakład: duży lounge- zjadacz z otwartą kuchnią, pralnia, dwa pokoje dwuosobowe z łazienką, uprzejmość i zadaszony taras połączony z basenem i ogrodem.
Wysoka roślina: sypialnia z łazienką i spektakularnym widokiem na Montgó.
Kuchnia marki Santos jest w pełni wyposażona w płytę indukcyjną, zintegrowany dzwonek ekstraktora, osmozę, lodówkę, zamrażarkę, piekarnik i kuchenkę mikrofalową.
Na zewnątrz znajduje się basen z solą fizjologiczną z podgrzewaniem, śródziemnomorski ogród z autochtoniczną roślinnością i automatycznym nawadnianiem, strzałka perymetralna dla większej prywatności i pergola o pojemności dla dwóch pojazdów, zbudowany w konstrukcji metalowej i plandeki kubatury.
Wioska jest zaprojektowana tak, aby zapewnić maksymalny komfort: napromieniowane ogrzewanie ziemi w obu zakładach, klimatyzacja przez prowadzenie z pompą ciepła, 3kw instalacji fotowoltaicznej i domotic do kontrolowania oświetlenia, klimatyzacji i zasłon silnikowych, nawet zdalnie. Na zewnątrz stolarka będzie wykonana z minimalistycznego aluminium z termiczną przerwą mostową oraz z ostrza bezpieczeństwa i komory powietrznej Guardian Sun, z otoczeniem oscylobatientowym.
Główną fasadę wyznacza wzmocniona ściana betonowa, ogrodzenia i metalowe zamknięcia oraz 4-metrowe drzwi automatyczne z podwójnym systemem dostępu dla pieszych i pojazdów.
W wyjątkowym miejsc, w samym centrum, a ponadto naprzeciwko parku Turia, zielonego płuca Walencji, z przepieknymi widokami, znajduje się przestronne
Ten wyjątkowy lokal znajduje się w samym centrum historycznym Walencji. Jest on z sufitami wysokimi niemal na pięć metrów i
Ta wyjątkowa nieruchomość znajduje się na jednym z najlepszych zamkniętych osiedli w Madrycie, El Golf de Las Matas, które posiada
